Стерилізатор Amigo
Amigo - це мийно-дезінфекційна машина з вертикальним завантаженням, яка може мати подвійну функцію в системі інфекційного контролю та використовуватися як зручна раковина.
Amigo не тільки очищує та дезінфікує різні предмети для догляду, такі як пляшки для сечі та підкладні судна, але й може використовуватись для спорожнення всіх видів ємностей.
Дезінфектори для промивання серії Amigo можна використовувати для виконання важливої подвійної ролі у вашій шлюзовій кімнаті. Amigo не тільки очищає та дезінфікує широкий спектр товарів для кровообігу, таких як пляшки з сечею та підстилки, але також діє як точка спорожнення для всіх видів ємностей.
Amigo - це мийна машина з вертикальним завантаженням, призначена для доступу по висоті. Передня частина нижча за задню, що забезпечує ширший доступ, коли верхня кришка відкрита, це полегшує завантаження, спорожнення та моніторинг. Також, це полегшує спорожнення відер для чищення та інших великих ємностей під час використання Amigo як умивальника.
Amigo можна використовувати для очищення та дезінфекції контейнерів для відходів життєдіяльності людини в широкому діапазоні форм і розмірів.
Вбудований умивальник
Ножна педаль підтримує ефективність і гігієну
Сенсорна панель керування з дисплеєм
Простий вибір програми
Термічна парова дезінфекція
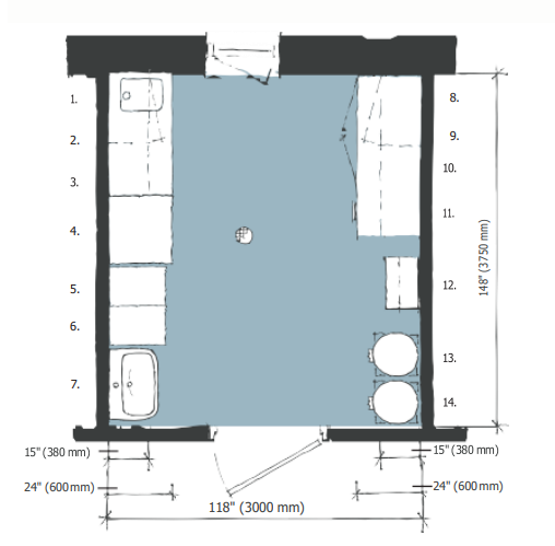
Приклад планування для великої шлюзової кімнати
- Навісна шафа, що замикається;
- Тумба для раковини зі зливним столом;
- Полиці з нержавіючої сталі;
- Дезінфектор мийки посуду;
- Промивний дезінфектор;
- Бак для спорожнення великих відер;
- Умивальник для рук з дозаторами для рідкого мила та дезінфікуючого засобу, одноразовими паперовими рушниками та контейнером для макулатури;
- Нижні шафи, що замикаються;
- Стільниця;
- Шафа для зберігання з підігрівом;
- Чиста полиця для зберігання;
- Інвентар для прибирання забрудненого підсобного приміщення;
- Тримач для для брудної білизни;
- Тримач для сміття.
Приклад планування для малого приміщення
- Чисті полиці для зберігання;
- Навісна шафа, що замикається;
- Бічний відстійник;
- Промивний дезінфектор;
- Мийний вузол зі зливом стіл/стільниця;
- Нижні шафи;
- Тримач для сміття;
- Мішок-тримач для брудної білизни.
Весь процес – від спорожнення до очищення та дезінфекції займає всього 4-7 хвилин.
Вбудований умивальник дозволяє зручно спорожняти та
чистити ємності.
- Конструкція, що завантажується зверху, забезпечує доступ по висоті на протилежній висоті;
- Похила передня частина забезпечує ширший доступ, коли верхня кришка відкрита, для легкого завантаження та спорожнення;
- Конструкція камери з глибокою витяжкою вміщує ємності більшого розміру;
- Після завершення очищення/дезінфекції кришка автоматично відкривається на 10 см для швидшого висихання та охолодження.
- Промивання активується одним натисканням кнопки;
- Служить зручним умивальником і ефективно спорожняє ємності різного розміру;
- Додатковий поворотний пристрій автоматично перевертає ємності, щоб спорожнити їх, зменшуючи потребу роботи руками.
- Пам'ять доступна для 25 програм;
- П'ять програмованих кнопок активують програми, що використовуються найчастіше;
- Найбільш часто використовувана програма може бути активована педалями.
- Натискання на ножну педаль відкриває або закриває кришку;
- Підтримує роботу в режимі "вільні руки" для зменшення ризику забруднення;
- Педаль також можна використовувати для запуску програми, яка використовується найчастіше.
- Економія 18 літрів/цикл ±10%
- Нормальний 29 літрів/цикл ±10%
- Інтенсивний 36 літрів/цикл ±10%
Стіна ø 3 1/2 або 4 1/4"(90 або 110 мм)
Підлога ø 3 1/2 або 4 1/4" (90 або 110 мм)
За допомогою стерилізатора Amigo забруднені предмети очищаються декількома струменевими форсунками, які подають воду під високим тиском у камеру. Етап очищення супроводжується термічною паровою дезінфекцією, що виключає необхідність використання додаткових хімічних засобів. Насадки стратегічно розподілені, щоб допомогти забезпечити ефективне очищення та дезінфекцію ємностей, як всередині, так і зовні. Весь процес – від спорожнення до очищення та дезінфекції – займає всього 4-7 хвилин.
Після кожного етапу дезінфекції всі частини внутрішньої частини системи – камера, труби, форсунки тощо – дезінфікуються за допомогою пари за допомогою функції дезінфекції трубопровідної системи (PSD). Коли процес очищення/дезінфекції завершено, кришка автоматично відкривається приблизно на 10 сантиметрів, щоб прискорити процес сушіння та охолодження.
Специфікації
| Ключові значення | |
|---|---|
| Виробник | Arjo |
| Країна виробник | США |
| Модель | Amigo |
| Матеріал | Хірургічна нержавіюча сталь |
| Тип стерилізації | Паровий |
| Загальні характеристики | |
|---|---|
| Ширина, мм | 590 |
| Висота, мм | від 1000 до 1060 |
| Глибина, мм | 660 |
| Вага, кг | 85 |
| Споживана потужність, КВт | 0,16 |
| Дисплей | Так |
| Максимальна зовнішня температура, С° | 40 |
| Нормативна інформація | |
|---|---|
| Код УКТЗЕД | 8419200000 – Стерилізатори медичні, хірургічні або лабораторні |
| Код ДК 021-2015 (CPV) | 33190000-8 Медичне обладнання та вироби медичного призначення різні (Стерилізаційне обладнання) |
| Код НК 024:2023 | 38671 Стерилізатор паровий |
| Без категорії | |
|---|---|
| Рівень шуму, Дб | 59 |